随着经济水平的发展以及生活水平的提高,越来越多的父母在装修时会着重考到虑孩子的成长与需求,比如装黑板墙,给孩子涂鸦或是艺术创作,进而激发想象力、创造力,又如搭建一个亲子活动区,给孩子自由活动让他们度过一个无忧无虑的快乐童年等等,本案业主正是在这样的想法下装修自己新房的,可以说这届家长为了孩子有多拼?或许从他家的装修就能看出一二。当然其它细节和亮点也不错,就忍不住给大伙分享一下。
面积:135㎡
地址:东莞
设计:建一设计
一楼布局图
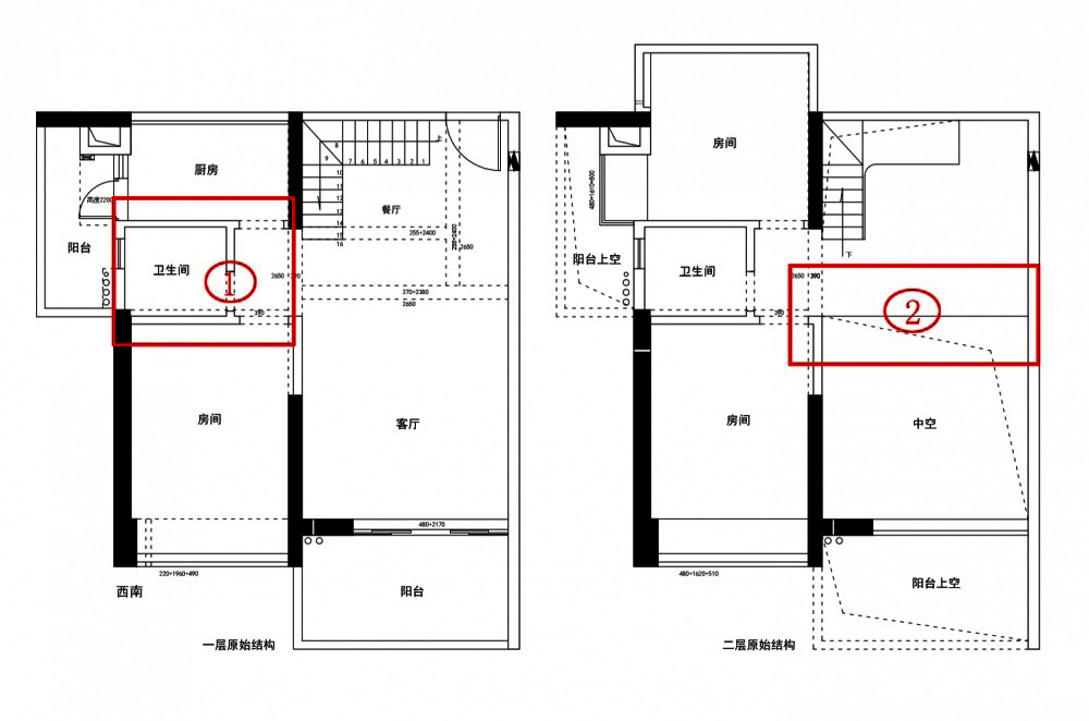
二楼布局图
房子为复式结构分为上下两层,其中一楼为活动待客的公共区,所以分布着客餐厨以及一间榻榻米活动室,二楼的话就是休闲区了,以卧室为主。
至于户型改动,虽然不多,但还是有的,比如将一楼的卫生间改小的同时扩大厨房面积,这样实用不少;第二就是把二楼主卧与书房的隔墙改用透光不透形的磨砂玻璃来替代,这样保证隐私的同时还能引光入室至楼梯间,从而家变得敞亮通透。
实景。入户左侧靠墙的地方是这么一处空间,配备了可移动的换鞋凳,对有老人和小孩的家庭来说特别友好;上方的话是洞洞板,可自由组合挂杆挂放一些衣物包包之类的东西显得非常人性化。再就是右侧的成品柜,胡桃木的简约款式加上装饰画,颜值高还富有品味。
餐厅的家具和成品鞋柜差不多,一样简约富有质感,只不过这里改为黑色的款式看着更为精致。
很多人喜欢把楼梯下方的空间就这么浪费着,其实用来定制柜子家里的储物空间能翻倍,就像业主他家一样,楼梯靠近入户和餐厅,就定制了一面餐柜和一面鞋柜,这样真的超实用。
看手稿图可知为什么业主不在入户玄关的地方定制顶天立地柜,因为完全没必要,可抽拉式的楼梯柜足以收纳不下50双鞋,然后成品柜辅助收纳一些小物件,这样空间显得开阔一些。所以如果你家也有楼梯下方的空间不知道该如何利用,不妨学他家这么设计吧。
这个是客厅,硬装虽然简洁,但只要采光好,软装家具在选品上以及布局上不出什么岔子,就能营造这么一个窗明几净的氛围令人无限放松。其它就是电视墙了,采用瓷砖不仅方便清洁,而且看着很有质感,加上深色的电视柜以及精致的皮沙发就更是如此了。
沙发墙以干净简洁的乳胶漆为主,搭配简约的装饰画方便省事又耐看。至于阳台以休闲为主,晾晒衣物的话厨房有个生活阳台。
中间这个是走廊,刚好把客餐厅划分开来。卫生间的话,采用谷仓门看着令人耳目一新。另外就是黑板贴了,用来涂鸦什么的也方便。
这个是一楼的洗漱台。
厨房将卫生间改小后,就设为L型开放式结构,一方面利用率高,另一方面也显得空间敞亮。
这个是榻榻米活动区,说白了其实就是亲子活动区,父母可以陪伴孩子在这里做游戏以及阅读儿童房绘本等等,加上专设的黑板墙,还可以画画,孩子在这里可以充分的成长,这样的布局真心令人羡慕。当然了,榻榻米地台床充当为临时客房以及用来午休什么的也没有问题,很方便。
沿着楼梯一上来就是眼前这么一个开放式的书房,不仅摆放了皮沙发用来放松阅读什么的,还靠墙设有书柜和长条形的书桌,一次容纳3个人一起使用完全不是问题。
如果问书房什么最重要?不同的人会有不同的答案,但是采光一定要好是共识,但问题是书房位于整个区域的内侧自然光进不来怎么办?如开头所述,业主用透光不透形的玻璃代替了与之相邻的主卧隔墙,这样效果会好上不少。
这个是主卧,装修虽然简单,但整体搭配不错,是以干净利落看着很舒服。
这个是梳妆台,轻巧的木质结构颜值挺高。
最后是儿童房,一张充满活力的单人床直接靠着墙角摆放可以释放左侧的空间,别出心裁的地方还有床头上方的凹槽,搭配置物隔板收纳一些小物件再合适不过了。至此本案就分享到了这里,感谢大家阅读。
推荐阅读:每日时讯网
设为首页
热门推荐